JDH Construction

About JDH Construction

JDH Construction has been building in Colorado for over 23 years, proudly serving as a trusted name in the local construction industry. As Colorado natives, their deep roots in the community shine through in every project they undertake. With a talented team led by Justin Hutton, JDH Construction excels in bringing your visions to life.

From crafting custom dream homes to remodeling and adding stunning additions, JDH Construction takes pride in their expertise. Specializing in internal and external carpentry, new construction, and complete refurbishments, they strive to bring quality results.

Full House Tour

JDH Construction's

In 2023, nestled in the Wet Mountain Valley of Colorado, JDH Construction completed a stunning custom home that perfectly embodies the timeless elegance of traditional farmhouse design. This exquisite build features a charming wrap-around porch, an inviting open floor plan, a spacious kitchen, and a grand stone fireplace. The rustic wood details and exposed beams adds a warm, welcoming touch, making anyone who steps inside feel instantly at home.

Take-Off

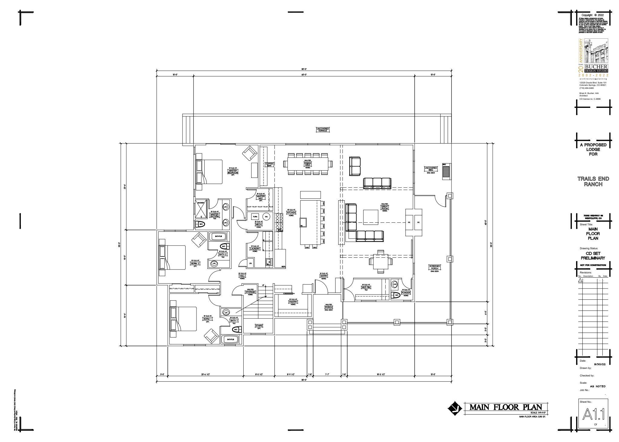
JDH Construction - Floor Plans
JDH Construction - Custom Home Build

This home is thoughtfully designed with ample space, featuring 5 bedrooms and 5 bathrooms. With a dedicated entertainment room, there’s plenty of room for a family to grow and create cherished memories for years to come.

Exterior Design

The wrap-around porch features durable Trex decking, sourced from Valley Ace Hardware, providing a seamless view of the beautiful surroundings. Overhead lighting is thoughtfully installed in the custom tongue and groove wood ceiling, enhancing the front entryway.

Materials Supplied by:
  • 31 Custom Sierra Pacific Windows
  • Custom Sierra Pacific 8′ Front Door
  • James Hardie Pre Finished Siding
  • Trex Decking
  • House Pack
  • Floor Pack

Thank you, JDH Construction, for ordering products for this build through Valley Ace Hardware. It was a pleasure doing business with you!

*Valley Ace Hardware acknowledges the work of this contractor and is sharing their services on our platforms. However, please note that we do not endorse or guarantee their work. We encourage you to do your own research and make informed decisions. If any issues arise with the contractor’s services, please reach out directly to them, as we cannot be held responsible for future performance.

Read and Share
Chloe McCalla

Related Articles

Get the Latest Blog Updates

Stay informed with our latest blog posts and updates.

By subscribing, you agree to our Terms and Conditions.